CASA “ENTRECOPAS”
Irrigación Santa Rosa, Huaral, Perú
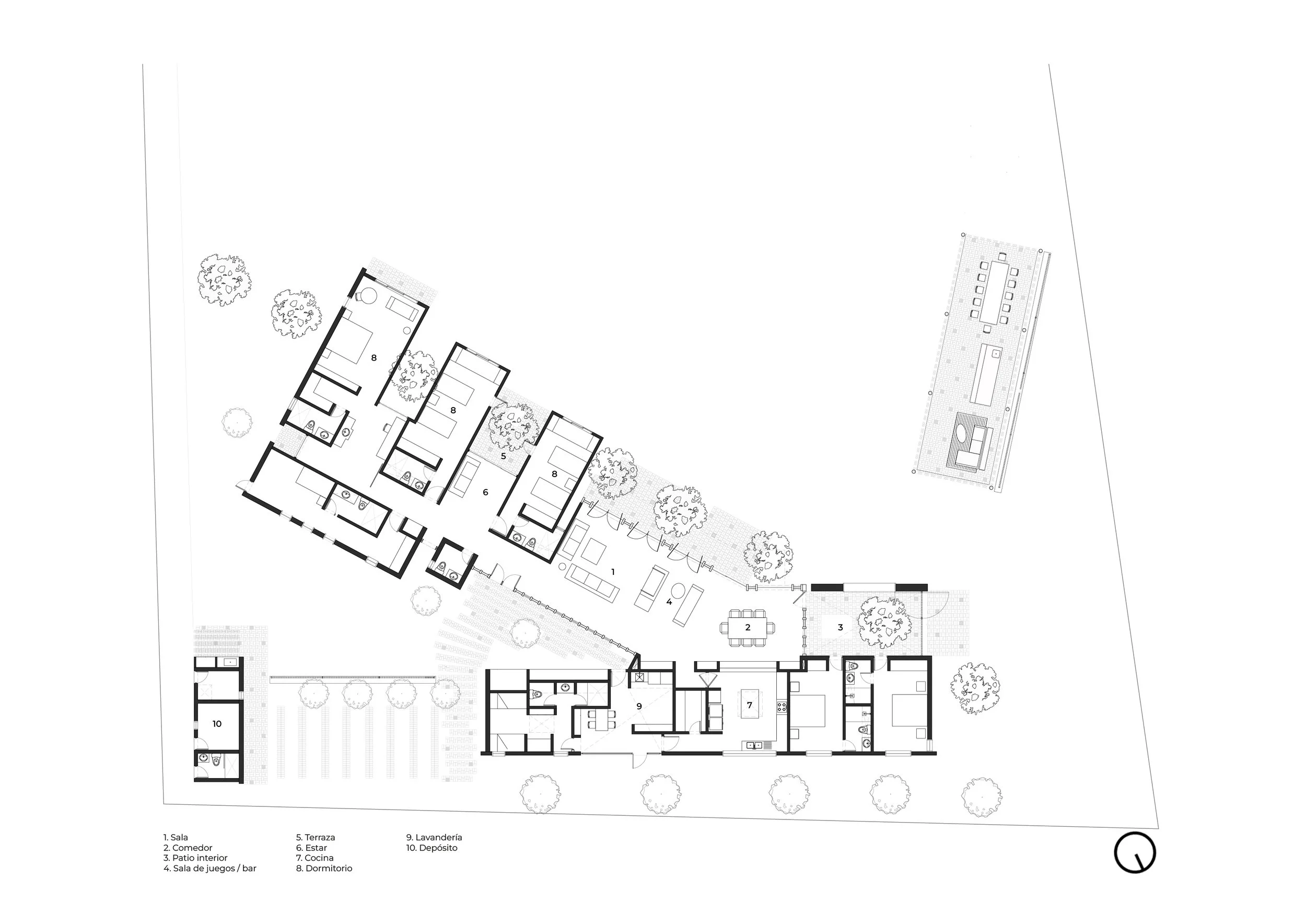
A 105 km al norte de Lima, donde la estribación andina se anticipa al desierto costeño, ingresamos a la Irrigación Santa Rosa, valle donde las aguas subterráneas generan una frondosa vegetación hábitat de gran variedad de aves.
CRÉDITOS ADICIONALES
Año: 2022
Diseño arquitectónico y supervisión integral de la obra: Marina Vella Arquitectura
Construction: AREAR Servicios Generales + Ing. Raul Echegaray + Lic. Rebeca Díaz Grados
Paisajismo: Marina Vella + Vivero 4 estaciones
Especialidades: PLANEA + Ing. Javier García
Colaboradores: María José Gaitán + Diego Cárdenas + Carolina Neuhaus + Andrea Sandoval
Gráficos: Marcia Milussich
Fotografía: Lorena Noblecilla
LINKS ADICIONALES
https://www.archdaily.pe/pe/997711/casa-entrecopas-marina-vella-arquitectura
https://www.floornature.com/blog/harmony-nature-casa-entrecopas-marina-vella-17590/
